weißer
Home
Dienstleistungen
Team
Referenzen
Industriebau
Neubau
Sanierung
Sonderkonstruktionen
Karriere
☰
Ihr Browser unterstützt kein JavaScript! Diese Website funktioniert nur ordnungsgemäß, wenn JavaScript aktiviert ist.
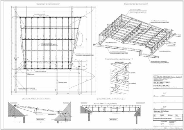
Sanierung
Schillerhaus Rudolstadt, Thüringen
Umbau historisches Schillerhaus als Museum und Restaurant Tragwerksplanung §64 HOAI 1 - 6
Blick vom Innenhof in das Glasdach
Detailansicht Schornsteinstabilisierung
Übersicht Hofüberdachung - Glas-Stahl-Dachtragwerk
Kursaalgebäude Bad Lauchstädt, Sachsen-Anhalt
Umbau und Sanierung historischer Kultursaal Tragwerksplanung §64 HOAI 6
Blick in den Innenbereich
3D-Übersicht der Tragkonstruktion
Querschnitt Tragkonstruktion
Fassadenbefahranlage Bahnhof Darmstadt, Hessen
Umbau und Sanierung historische Befahranlage Tragwerksplanung §64 HOAI 1-6
Ingenieurbüro für Statik und Konstruktion
Vorwerksgasse 12
07407 Rudolstadt
Phone: +49 (0) 3672 / 489745
Mobil: +49 (0) 171 / 5707281
Fax: +49 (0) 3672 / 313922
E-Mail: office@ib-weisser.de
Karte
So finden Sie uns
Unser Büro liegt Zentral in der Innenstadt von Rudolstadt und ist gut per Auto und Bus erreichbar. Vereinbaren Sie am besten gleich einen Termin.